Economic Development

The Economic Development Department is dedicated to fostering a thriving economy that stimulates balanced and sustainable growth by connecting business, community, people, and jobs through a variety of strategies and initiatives. The Economic Development Department advocates, facilitates, plans, and executes business development, programming, planning, strategic initiatives, and marketing and communication strategies that enhance the local economic environment.  

Click here to learn more about the Economic Development Department. 

In addition to Economic Development projects, programs, and initiatives, the CRA also initiates and funds economic development projects that promote economic revitalization. Currently, the CRA is working on the revitalization of Dyson’s Plaza in Historic East Winter Garden Neighborhood.

Economic Development Projects

Dyson’s Plaza, Historic East Winter Garden Neighborhood

The CRA is currently finalizing a grant to revitalize Dyson’s Plaza, a long-standing commercial property located in the heart of Historic East Winter Garden Neighborhood. Currently vacant, Improvements will include bringing the building up to Code and modernizing it. Once completed, the 2,300 square foot building will provide space for two businesses. 

Located at 215 Center Street, Dyson’s Plaza was once the hub of a thriving neighborhood commercial district. The refurbished building is considered ground zero for the redevelopment of Historic East Winter Garden Neighborhood.

Dyson’s Plaza Façade Elevation

Dyson Plaza Facade Elevation Image

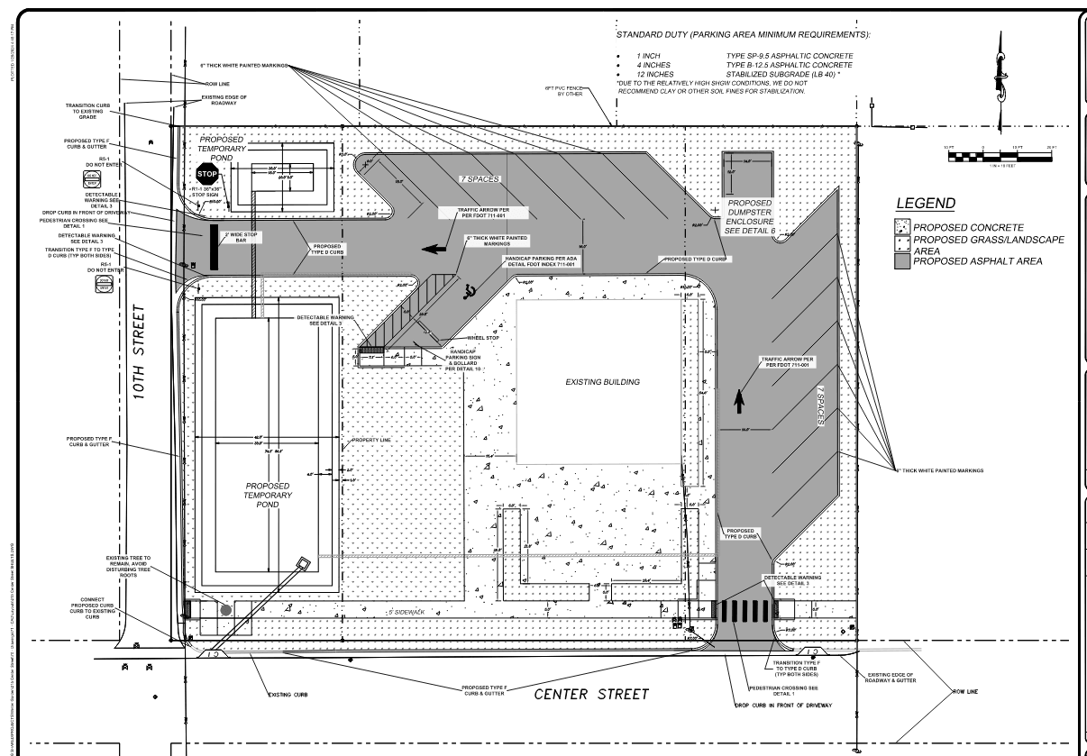
Dyson’s Plaza Site Plan

Dyson Plaza Site Plan April 2024