ZANDERS PARK RENOVATION AND IMPROVEMENT PROJECT
Zanders Park, 362 11th Street, will receive a facelift in 2024/25. The CRA is investing in the upgrades to the neighborhood park that currently has a children’s playground, basketball courts, pavilion, restrooms, and outdoor tables. Improvements are scheduled to commence during the fall of 2024.
The improvements will include a redesign of the park with new playground equipment and new signage.



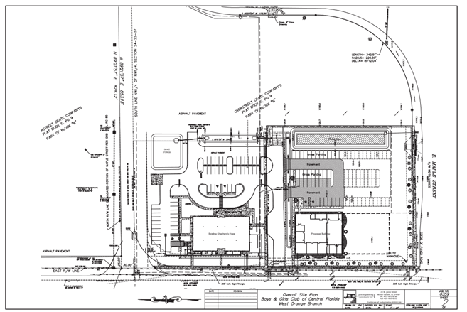
WEST ORANGE BOYS AND GIRLS CLUB
Boys and Girls Club House is coming to Winter Garden! The City, in partnership with the Boys and Girls Club of Central Florida, will be building a facility located at 459 Ninth Street. The project has received City approval and construction is expected to begin later this year. The City has agreed to provide a land lease, waive fees, and contribute $1.5 million towards the construction of Phase 2. The programs provided by the Boys & Girls Club will offer well needed services and activities for Winter Garden students in grades K-12. The facility will also provide an additional multi-use meeting space for the community.
Below is the rendering and approved site plan for the project.

